Free Download ALCAD for Windows PC. It is a CAD (Computer-Aided Design) software similar to AutoCAD, offering DWG format compatibility for seamless design work.
Overview of ALCAD
It stands out as a DWG-compatible software with a user interface reminiscent of AutoCAD. The familiarity of commands makes the transition seamless for AutoCAD users. It is a robust CAD solution and extends its capabilities to MEP/HVAC solutions in 2D and 3D.
Benefits
- Modern Approach & Sustainable Results: It has earned its place as a leading CAD provider, trusted by over 10,000 users, including large corporations. The software’s 24/7 customer support ensures that users can seek assistance or expert advice whenever needed at no additional cost. Opting for a permanent license comes with fixed fees, eliminating subscription costs and hidden fees and offering a fair pricing structure.
- Customer Focus: Customers are at the forefront of priorities. The company is dedicated to finding the best solutions for its users, making it a reliable choice for those seeking personalized and efficient CAD services.
- MEP Solution: This software goes beyond conventional CAD offerings by providing MEP Plugins tailored for the MEP/HVAC industry. These plugins offer practical plumbing, heating, ventilation, and more solutions. With it, technical installations can be effortlessly created and evaluated using intelligent MEP plugins.
- Tailored Solutions: It caters to a global audience by offering its software in multiple languages. Users can easily switch languages within the CAD settings, ensuring a seamless experience for users worldwide.
- Similar Functions to AutoCAD: Professional offers a 2D/3D CAD experience with comparable functions. The Layer Manager, XREF Manager, input methods, and layout customization mimic the familiar features found in AutoCAD.
- PDF Import: One standout feature is its ability to import PDFs and convert them into DWG files, enabling users to edit and work with these documents seamlessly.
- Import/Export Compatibility: It supports various file formats, including DWG, DXF, STEP, IFC, DGN, and STL. This compatibility ensures users can collaborate across different platforms and industries without hindrance.
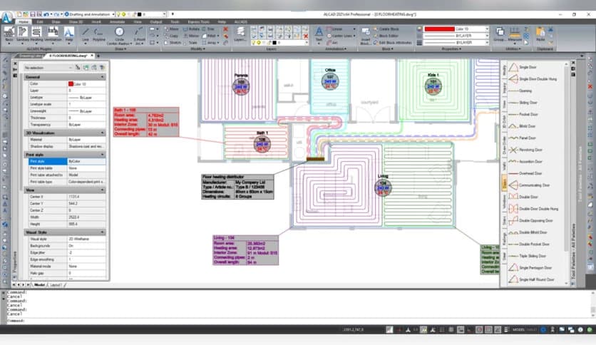
- Technical Installations with MEP/HVAC: It has a rich history of developing solutions for the MEP/HVAC industry. The MEP plugins allow users to model piping, ventilation ducts, floor heating, drain pipes, and more in 3D and 2D. Video tutorials for each MEP plugin facilitate easy learning and implementation.
- AutoCAD DWG Compatibility: One of its strengths is its compatibility with AutoCAD DWG files. Users can work directly in DWG format, eliminating the need for data conversions, imports, or exports. This seamless integration ensures collaboration with CAD users worldwide.
System Requirements
- Operating System: Windows 11/10/8.1/8/7
- Processor: Minimum 1 GHz Processor (2.4 GHz recommended)
- RAM: 4GB (8GB or more recommended)
- Free Hard Disk Space: 4GB or more is recommended
Conclusion
ALCAD is a powerful and user-friendly alternative to AutoCAD. Its compatibility, modern approach, and tailored MEP solutions make it a go-to choice for design and drafting professionals. With an interface mirroring AutoCAD and an array of features, it is poised to meet the diverse needs of users across the globe.










Comments
Leave a comment
Your email address will not be published. Required fields are marked *